Apartamente 3 camere Bd. Mărășești. Privește apartamentul cu 3 camere ca pe un adagio binevenit. Avantajele pe care le vei primi odată cu spațiul sunt de la sine înțelese, trebuie doar să îți cunoști nevoile și să lași spațiul să își articuleze particularitățile.

14 tipuri de apartamente 3 camere Bd. Mărășești, cu suprafețe cuprinse între 71 mp și 319 mp utili. Apartamentele cu 2 camere din Boemia Apartments dispun toate de terasă sau grădină.

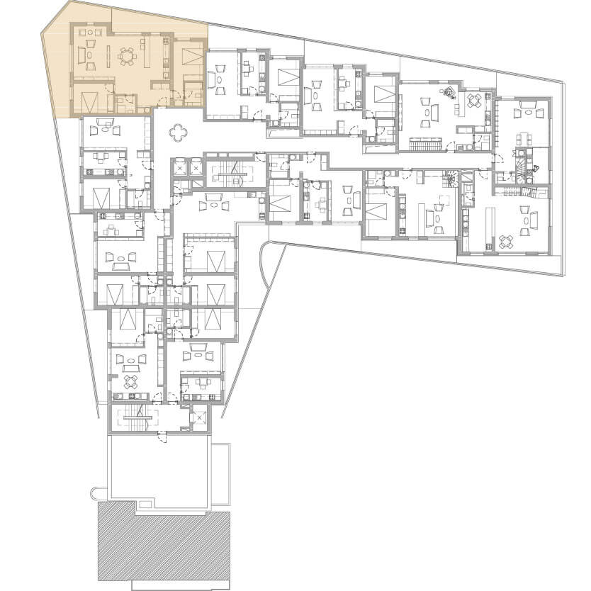
Apartament 3 Camere Tip E4.01

TYPE
(SOLD OUT)
1. Hol 11,79 mp
2. Grup sanitar 3,15 mp
3. Bucătărie 10,80 mp
4. Living + Dinning 33,80 mp
5. Dormitor 1 11,76 mp
6. Baie 3,87 mp
7. Dormitor 2 13,99 mp
Suprafață utilă 89,18 mp
8. Terasa 44,79 mp
Suprafață utilă totală 133,97 mp
Apt. Etaj Disponibilitate
4.01 Etaj 4 Indisponibil

DACĂ SUNTEȚI INTERESAȚI DE ACEST APARTAMENT, NU EZITAȚI SĂ CONTACTAȚI REPREZENTANȚII DE VÂNZĂRI:

Dana Sitaru
Consultant vânzări

Sau completați formularul de contact și Macedon ori Dana vor reveni de îndată cu informațiile solicitate:

    [utm_campaign_i][/utm_campaign_i]

    [utm_source_i][/utm_source_i]

    [utm_medium_i][/utm_medium_i]

    [utm_term_i][/utm_term_i]

    [utm_content_i][/utm_content_i]

    [gclid_i][/gclid_i]

    Confidenţialitatea ta este importantă pentru noi. Vrem să fim transparenţi și să îţi oferim posibilitatea să accepţi cookie-urile în funcţie de preferinţele tale.
    ×
    Alegerea dumneavoastră privind modulele cookie de pe acest site
    FIŞIERE COOKIE NECESARE
    Aceste cookies sunt strict necesare pentru funcţionarea site-ului și nu necesită acordul vizitatorilor site-ului, fiind activate automat.
    Afisează modulele cookie necesare
    Vă rugăm să alegeţi care dintre fişierele cookie de mai jos nu doriţi să fie utilizate în ce vă priveşte.
    Aceste module cookie ne permit să analizăm modul de folosire a paginii web, putând astfel să ne adaptăm necesității userului prin îmbunătățirea permanentă a website-ului nostru.
    Afisează modulele cookie necesare
    Aceste module cookie vă permit să vă conectaţi la reţelele de socializare preferate și să interacţionaţi cu alţi utilizatori.
    Afisează modulele cookie necesare
    Aceste module cookie sunt folosite de noi și alte entităţi pentru a vă oferi publicitate relevantă intereselor dumneavoastră.